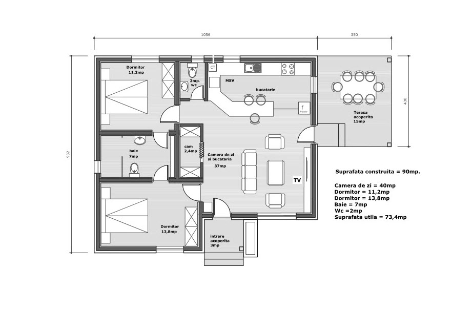
Tocmai am finalizat o casa parter pe structura din lemn in loc. Snagov, jud. Ilfov, care imbina confortul spatiilor interioare cu o compartimentare eficienta a unui spatiu relativ redus.
👍Suprafata construita: 90mp + terase acoperite 18mp, 2 dormitoare, 2 bai, living + bucatarie open space si o camara pentru depozitare, proiect de arhitectura realizat de Arh. Catalin Licaret.
Cu ajutorul tehnologiei MiTek, structura acoperisului a fost proiectata in PAMIR, iar fermele prefabricate imbinate cu conectori multicui s-au realizat in atelierul nostru.
Suntem devotati structurilor din lemn in sistem timberframe din mai multe motive:
✅ Sunt eficiente din punct de vedere al consumului de materiale, al costului si al timpului de executie in santier, intrucat toate elementele sunt prefabricate in unitatea noastra de productie, iar montajul in santier se aseamana unui puzzle.
✅ Lemnul este un element structural care rezista foarte bine la cutremure, comparativ cu betonul si zidaria. Cu cat constructia este mai usoara, cu atat distrugerile sunt mai mici.
✅ Lemnul folosit este de clasa de rezistenta C24, tratat ignifug si impotriva cariilor.
Casa pe structura din lemn parter 90mp Snagov, jud. Ilfov












